г. Караганда, пр. Назарбаева, 4, офис 110
г. Караганда, пр. Назарбаева, 4, офис 110
















Вертикальная стальная лестница типа П 1-2 с площадкой для выхода на кровлю и специальным защитным экраном применяется на зданиях высотой до 20 метров. Ее установка может осуществляться как на торцах, так и на тыловом фасаде здания.
Пожарная лестница VEGAPROM Zn изготавливается из оцинкованной стали в двух вариантах: с нанесением порошковой краски и без неё. Высококачественная атмосферная краска наносится на автоматизированной линии с использованием трёх этапов подготовки поверхности и конверсионного покрытия, что гарантирует полное отсутствие непрокрашенных участков. Резка металла для элементов конструкции выполняется с использованием азота, благодаря чему сохраняются исходные свойства оцинкованной стали.
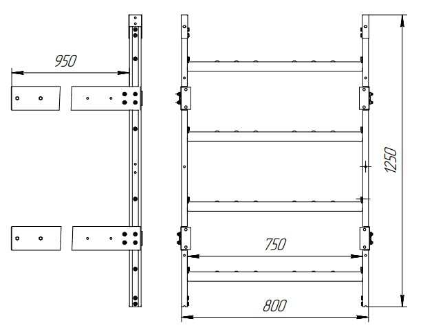
Полотно лестницы П 1-2 изготовлено из оцинкованной стали толщиной 2 мм. Ступени имеют пуклеванную поверхность, что позволяет минимизировать риск скольжения при эксплуатации лестницы.
Комплектация:
| Полотно лестницы | 1 шт |
| Стеновой кронштейн 900 мм | 4 шт |
| П-образный кронштейн | 4 шт |
| Экран безопасности | 2 шт |
| Укосина крепления экрана | 2 шт |
| Материал | оцинкованная сталь |
|---|---|
| Толщина, мм | 2 |
| Длина, мм | 1200 |
| Ширина, мм | 800 |
| Экран безопасности,мм | 800х1200 |