г. Караганда, пр. Назарбаева, 4, офис 110
г. Караганда, пр. Назарбаева, 4, офис 110


















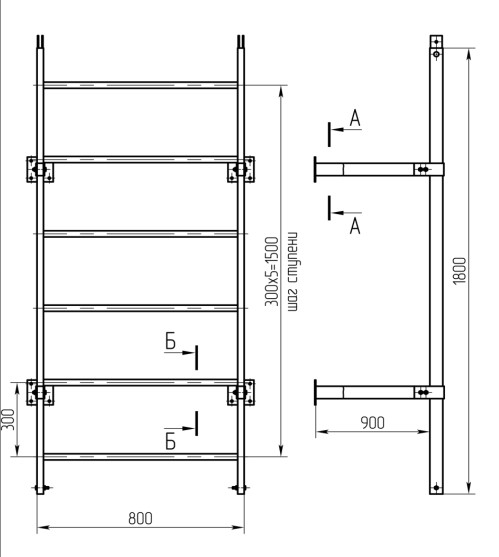
Вертикальная стальная лестница типа П 1-2 с площадкой для выхода на кровлю и специальным защитным экраном применяется на зданиях высотой до 20 метров. Ее установка может осуществляться как на торцах, так и на тыловом фасаде здания.
Пожарная лестница VEGAPROM изготовлена из горячекатаной стали с порошковой окраской, нанесенной на автоматической линии с тремя стадиями подготовки поверхности и конверсионным покрытием, что позволяет полностью избежать частичного не прокрашивания изделия. Конструкция лестницы имеет болтовое соединение и не требует дополнительных сварных работ.
Полотно лестницы П 1-2 VEGAPROM изготовлено из профильной трубы 50х25 мм, толщиной 2мм, трубы d 25 мм и холоднокатаного листового металла толщиной 4 мм.
Экран лестницы П 1-2 VEGAPROM изготовлен из полос 40х4 мм (стыковочная перемычка) и полосы для экрана 25х4 мм.
Комплектация:
| Полотно лестницы | 1 шт |
| Стеновой кронштейн 900 мм | 4 шт |
| П-образный кронштейн | 4 шт |
| Экран безопасности | 2 шт |
| Материал | сталь |
|---|---|
| Длина, мм | 1800 |
| Ширина, мм | 800 |
| Тетива | профильная труба 50х25 мм, толщина 2мм |
| Ступень | Труба d 25мм, толщина 4 мм |
| Экран безопасности, мм | 800х900 |